首页
集团概况
集团产业
新闻中心
招标采购
企业文化
社会责任
联系我们
OA
新闻
概况
产业
招标
文化
更多
责任
联系
首页
新闻中心
公司动态
项目动态
党建新闻
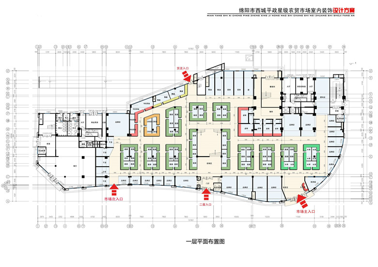
西城都市中心--平政农贸市场A区规划图
发布时间:2015-06-30
来源:本站原创
点击次数:3823次
前期已报名登记的意向客户,请向我公司总部提交相关资料(如:营业执照复印件、现有店面形象照、所经营产品样图、供货商信息、经营方案等),以便于我公司下一环节进行客户筛选提供依据,感谢大家对西城集团--平政农市场的关注。
咨 询 电 话:0816-2222799 2239299
报名登记地址:绵阳市临园路东段12号兴达国际(建设银行大楼)23楼
上一页
下一页